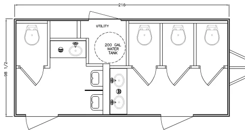
The Farmhouse Restroom Trailer series by A Restroom Trailer Company is an attractive unit featuring custom white composite cabinetry with flat panel doors and are accented with black hardware. A decorative tan wall is accented with flat square mission style composite trim, a white shiplap accent wall and black framed mirrors, Also included are Solid Surface countertops with black hands free faucets, integrated under mount square sinks, and wood grain linoleum flooring. The Farmhouse is suitable for an endless variety of events.


